|
Surface habitable totale du projet Rez-de-chaussée : 183,5 m² Etage : 92,5 m² Les mesures présentées ci-dessous en exemple correspondent au projet initial mais pourront tout à fait être remaniées si souhaité |
276,0 m² |
|
Rez-de-chaussée |
183,5 m² |
|
Salon et espace détente (avec four à pain) |
98,5 m² |
|
Cuisine ouverte avec salle à manger cathédrale jusqu'à la toiture (vue sur la charpente ancienne) |
32,3 m² |
| Entrée en coursive | 18,4 m² |
| Chambre 1 avec dressing | 18,2 m² |
| Salle de bains / WC contiguë | 7,6 m² |
| Cellier / Buanderie | 8,5 m² |
|
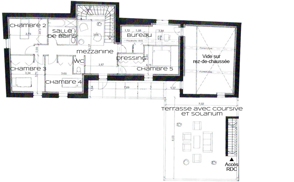
Etage |
92,5 m² |
|
Chambre 2 |
12,0 m² |
| Chambre 3 | 11,9 m² |
| Chambre 4 | 11,2 m² |
| Chambre 5 avec dressing | 14,6 m² |
| Salle de bains | 7,0 m² |
| WC séparé | 1,9 m² |
| Bureau | 12,8 m² |
| Mezzanine | 21,1 m² |
|
Autres surfaces |
|
|
Terrasse à l'étage avec coursive et solarium exposé sud-ouest (cette terrasse est également accessible depuis le rez-de-chaussée) |
62,6 m² |
|
Terrasse (RDC) exposée sud-ouest |
30,0 m² |
| Terrain |
2.850,0 m² |